Local en rentabilidad en Alcalá de Guadaíra, Centro



Local en rentabilidad en Alcalá de Guadaíra, Centro

de la Plata 17, 41500 Alcalá de Guadaíra (Sevilla)
  • Addmeet Inversión, Local En rentabilidad en Alcalá de Guadaíra
  • Addmeet Inversión, Local En rentabilidad en Alcalá de Guadaíra
  • Addmeet Inversión, Local En rentabilidad en Alcalá de Guadaíra
  • Addmeet Inversión, Local En rentabilidad en Alcalá de Guadaíra

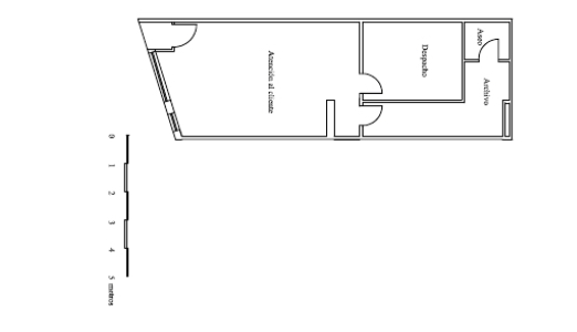
Características

  • SBA total:54 m²
  • Fachada:5 m
  • Altura:3 m
  • Sistema Contra Incendios (SCI)
  • Antigüedad (año construcción):2005

Datos económicos

  • Renta Media :12,60 €/m² & mes
  • Gastos incluidos
  • Rentabilidad:6,50 %
  • Precio venta:125.638 €
  • Precio venta / m²t:2.327 €/m²
  • Inquilino/s:AXA Seguros Generales S.A
  • CIF Inquilinos:A60917978
  • Año fin contrato/s:2035
  • Año fin obligado cumplimiento:2020
  • Fianza:2 meses

Comentarios

  • Local en rentabilidad en Alcalá de Guadaira (Sevilla). Local con 5 metros lineales de fachada alquilado a inquilino AAA (AXA Seguros) con obligado cumplimiento hasta 2020 (4 años pendientes) y 2 meses de fianza. Rentabilidad del 6,50% neta, ya que el inquilino corre tanto con los gastos generales como con el IBI.

Inmuebles que quizás te interesen

  • Local en Sevilla

    Local en Sevilla

    SBA: 57m²

    Precio: 143.625 €

    Rentabilidad: 6,50%

    Renta: 13,60€/m² & mes

    Contrato: Hasta2020

  • Local en Barcelona

    Local en Barcelona

    SBA: 44m²

    Precio: 121.200 €

    Rentabilidad: 7,00%

    Renta: 16,07€/m² & mes

    Contrato: Hasta2014

  • Local en Asturias

    Local en Asturias

    SBA: 143m²

    Precio: 470.000 €

    Rentabilidad: 6,52%

    Renta: 17,86€/m² & mes

    Contrato: Hasta2035

  • Local en Madrid

    Local en Madrid

    SBA: 130m²

    Precio: 350.000 €

    Rentabilidad: 8,56%

    Renta: 19,23€/m² & mes

    Contrato: Hasta2015

Localización del inmueble